如果您正在尋找相關產品或有其他任何問題,可隨時撥打公司服務熱線,或點擊下方按鈕與我們在線交流!
方案背景:
近年來,我國電力、通信、能源、交通等行業規模不斷擴大,對電線電纜的需求迅速增長,中國電線電纜行業已步入飛躍發展期,產量主要集中在東部和中部地區。江蘇宜興、安徽無為、河北寧晉、浙江臨安、福建南平等地已形成成熟的電纜產業集群。當前我國電線電纜企業規模達近萬家,其中97%是中小企業,設備平均利用率在30%-40%,遠遠低于國際上設備利用率70%以上的水平。由于行業門檻低、低水平重復建設嚴重,行業還存在諸如產業集中度低、行業產能過剩及質量良莠不齊等許多問題。另外,電纜產品制造過程對人類生態環境的污染問題也將提到日程上來。
方案介紹:
適用行業:電纜行業 方案額定出力:16噸
電線電纜有銅和鋁這兩種線芯材質,是通過拉制、絞制、包覆三種工藝來制作完成的,型號規格越復雜,重復性越高。其中包括混煉、擠出、硫化三個過程,在制造電纜過程中對蒸汽需求是必不可少的,而且對溫度的控制也相當嚴格。

中正鍋爐服務過全國多家電線電纜生產企業,有著豐富的該行業項目經驗。據了解,在電纜擠出過程中,溫度過高則容易燒焦,溫度過低則膠化不易;在硫化過程中,溫度太低容易產生氣泡,溫度太高容易產生氣孔。而且每一個過程的溫度和壓力要求不同,所以溫度和壓力的控制要精準可調節。這就使得電纜生產對蒸汽系統的要求非常之高。
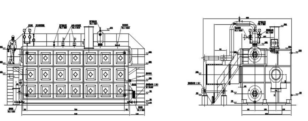
通過將中正鍋爐的客戶案例進行統計分析,對于電線電纜生產企業而言,對蒸汽鍋爐控制系統的高要求和環保意識的加強,WNS系列、SZS系列冷凝式燃氣蒸汽鍋爐的應用頻率較高,SZL系列、DZL系列燃煤蒸汽鍋爐應用相對較少。如某電線電纜企業年產量達6億米,中正鍋爐的技術人員根據生產要求和環保標準為其推薦了10噸和6噸的SZS系列燃氣蒸汽鍋爐各一臺用于生產,不僅運行機械化和控制自動化程度比較高,對不同燃料具有較強的適應性,節能環保效果更佳。
方案優勢:
設備節能環保效果好
燃料具有較強的適應性
中正鍋爐研發的WNS系列、SZS系列蒸汽鍋爐選用的爐膽尺寸大,為燃料的充分燃燒提供條件,因此,對不同燃料具有較強的適應性。

設備自動化程度較高,操作簡便
先進的蒸汽鍋爐全自動控制器,全中文液晶屏,人機界面,用戶只需輕松設定,鍋爐即能按用戶要求啟停、負荷調節、自動給水等全自動運作。
文章【年產6億米電線電纜蒸汽解決方案】由鍋爐廠整理發布,轉載請注明:http://m.qdhsf.cn/new/5.html